Butler's Grand Modern V.2
Wilshire NEW CONSTRUCTION
3919 NE 35th Place, Portland, Oregon
$ 1,450,000
Sold
A detailed black and white line drawing of a two-story house with a garage, large windows, and a front porch. The house is surrounded by shrubs and has a staircase leading to the main entrance.
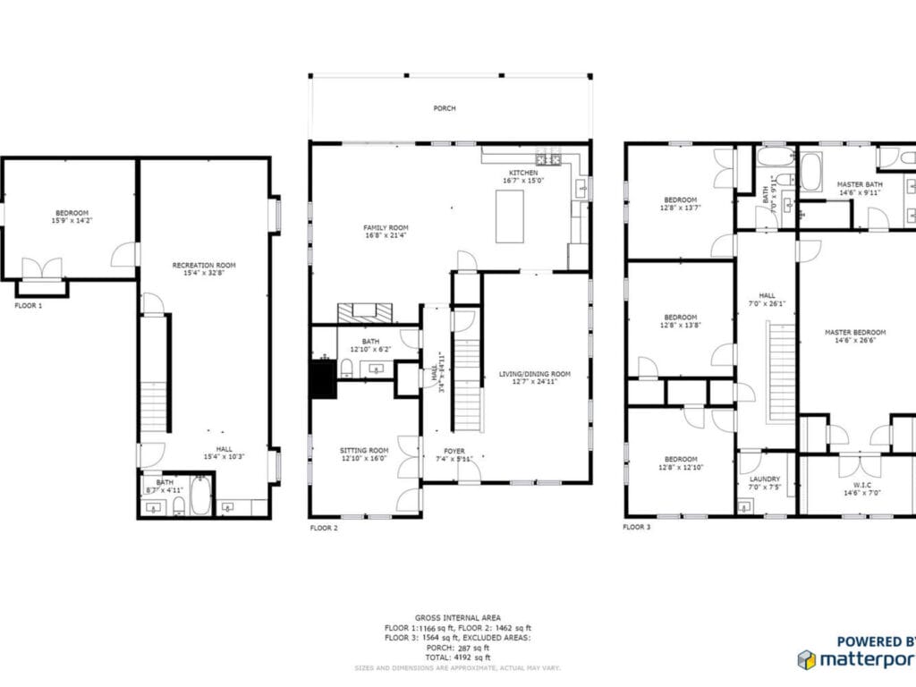
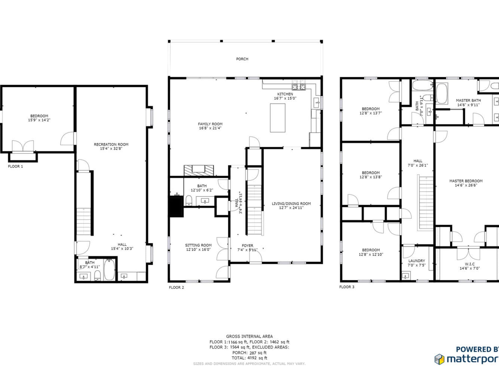
An encore to Butler Redevelopment’s record setting sale on 36th, this grand modern home is situated just half a block from Wilshire Park. Playing off the fit and finish that the market loved in 2018, Butler has made some subtle changes to the cosmetics and a few simple tweaks to the bedroom layouts. Standing tall on one of Beaumont-Wilshire’s quietest streets, this newly built home is thoughtfully laid out across three gracious floors. The main floor boasts an open living room and dining room with tall ceilings, tons of natural light and a main floor study or guest room tucked nicely in the SE corner. You can enter the great room / kitchen via a central hallway or through the open dining room where oak hardwoods are paired with rift white oak cabinetry and classic surface treatments. Cedar and Moss lighting, built-in bookshelves, and Ann Sacks swiss cross tiling on the fireplace speak to some of the high end finishes that compliment one of the finest kitchen / great rooms you will see on the Eastside. Rounding out the main floor is a full bathroom, which paired with the main floor office / bedroom makes a compelling statement, complimented by assets like the covered back porch which you reach through an expansive three panel door. The second floor features an incredible master suite with dueling closets, a light filled walk-in third closet with oak built ins and a stunning en suite bathroom. The bathroom features a herringbone tiled shower pan, free standing tub and custom double vanity. Like the master bedroom the three other bedrooms have been outfitted with sand in place oak hardwoods, smooth coat sheetrock and schoolhouse lighting. A second bathroom and laundry room round out the second floor which features gorgeous peek-a-boo views of the surrounding neighborhood and Wilshire Park. Heading back downstairs, the finished basement provides the perfect entertaining space and guest quarters. A wet bar and expansive family room run the entire length of the home, while a large fifth bedroom and fourth bathroom provide ample space for a large family or visiting guests. In addition to the finished spaces in the basement is an attached, tuck under garage with storage closet and direct access to the lower level. This rare 4000 plus square foot modern home has a sought after Beaumont-Wilshire location at the southern foot of the park, just blocks to Beaumont shops and the community's favorite restaurant - Tacovore. Whether taking in a book on the covered back porch, a basecamp for family and friends or entertaining in the amazing great room, this home offers incredible, seemingly endless opportunities to take part in!
MLS#
19438567
Neighborhood
Beaumont-Wilshire
Bedrooms
5
Bathrooms
3.1
Square Feet
3500+ SQFT
Lot Size
5000+ SQFT
Year Built
2019
Property Taxes
$ 4,238.82 (2018)

Property Photos


Virtual Tour