$40,000+ OVER ASKING!
TURN-KEY MID-CENTURY
4643 SW 39th Drive, Portland, Oregon
$ 645,000
Sold
Single-story white house with large windows and a gray roof, surrounded by green lawn, shrubs, and tall trees under a blue sky with scattered clouds. A driveway is visible on the right.
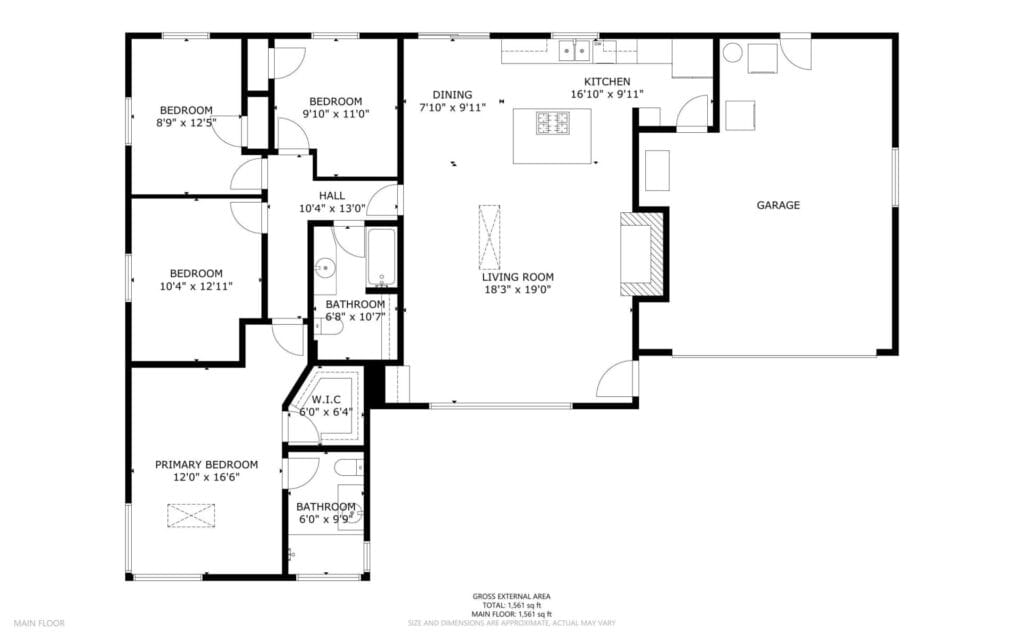
Originally built in 1956, this stunning mid-century stands prominently today on one of Bridlemile's classic southwest streets. The home's expansive footprint is evident from the moment you witness the gorgeous east facing elevation. Upon entering the home, you find yourself in its trademark great room. East facing windows standing in soldier fashion alongside a perfectly positioned skylight introduce natural light to the space, while oak hardwoods, a stately wood burning fireplace and designer colors round out the gorgeous finish palette. Seamlessly tied to the kitchen and dining room, this home features one of the single most sought after floor plan elements in today's market. The kitchen is highlighted by a large cook's island, updated counters and cabinetry as well as a set of sliding doors that give you the perfect flow and perspective of the backyard. As a testament to mid-century architecture, this home has a simple delineation of its formal spaces from its bedrooms. A primary hallway takes you from the great room down an L shaped wing of the home that boasts four bedrooms and two full bathrooms. Oak hardwoods run throughout three of the bedrooms while wall to wall carpet graces the floor of the primary suite. Anchoring the SE corner of the home, the primary bedroom boasts vaulted ceilings, a walk-in closet and an updated en suite bathroom. The bathroom features a tile set shower surround, single vanity and classic finish details. Like the interior, the stewards of this home have paid careful attention to the grounds and envelope, updating details at every turn. The backyard features an expansive cedar deck, tree house, established trees and a separate south facing garden area. Recently repainted, the classic white, board and batten envelope coupled with updated, white, dual paned vinyl windows and a solid stained cedar front door make this home stand out on a street with numerous other noteworthy mid century ranch homes. You don't want to miss this gorgeous Bridlemile property with an address just a short distance from multiple parks, the elementary school and countless shops!
MLS#
352968589
Neighborhood
Bridlemile
Bedrooms
4 (1 non-conforming)
Bathrooms
2
Square Feet
1475 SQFT
Lot Size
7500+ SQFT
Year Built
1956
Property Taxes
$ 7,488.80 (2024)

Property Photos


Virtual Tour