SILVER LEED!
LEED Certified STUNNER!
3554 NW 112th Place, Portland, Oregon
$ 979,000
Sold
A backyard with a raised wooden deck, sheltered patio below, green grass, shrubs, stone path, tall trees, and a small shed or chicken coop near a wooden fence.
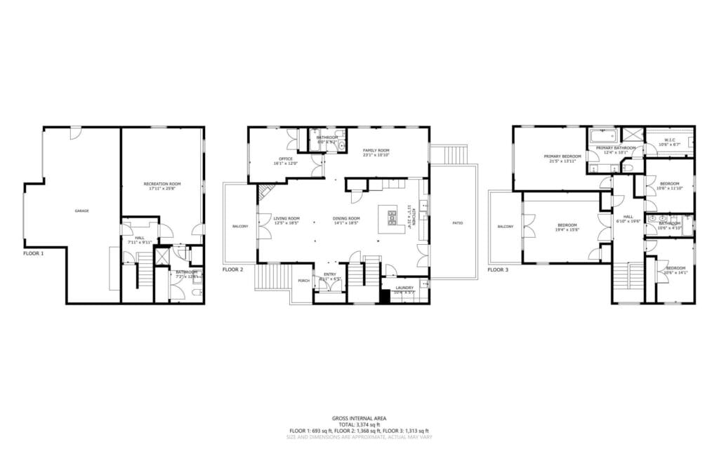
Originally built in 2008, this stunning LEED certified home stands today as a testament to the innovative and mindful building methods and technologies that continue to set the bar in the building industry today. From the moment you approach the home you will swoon at its incredible three story elevation that uses clever linear balusters, modern architectural aesthetics and stunning finish treatments. Heading up the IPE clad stairwell to the front door you immediately get a sense regarding the careful consideration the builder used to blend this home with the adjacent topography of Bonny Slope Park, which serves as the property's incredible backdrop. As you enter the home you find yourself in the large foyer that leads you into the expansive great room and adjacent kitchen. Wide plank flooring runs underfoot while classic modern colors grace the walls. The kitchen features slab cabinetry, floating shelves, a killer appliance package and a massive quartz island. A grand main floor bedroom with adjacent full bathroom and large family room/den anchor the north side of the floorplan while multiple decks bookend the home to the west and east. A gracious laundry room rounds out the SE corner and completes the over 1300 plus square feet that comprise this level. Heading upstairs you will find an equal amount of finished square footage that includes three full bedrooms, two bathrooms and a stunning family room with built-ins, dual closets and its own balcony! The family room can serve as a fourth bedroom or office, while the ensuite primary bedroom and the overall finish palette of the second floor leaves no stone unturned. Moving back downstairs to the lower daylight level you find another 600 plus square feet of space that includes a massive media/game room, fourth full bathroom, stately mud room and adjacent oversized garage. The design of the home is not just incredibly energy efficient, but boasts ideal interior to exterior flow patterns from all three floors. The lower level opens to a covered patio which introduces you to the grand backyard, while three separate decks give way to gorgeous perspectives of this quiet, quaint cul de sac and the idyllic park to the east. Just around the corner from Well and Good Cafe and located in the highly sought after Bonny Slope neighborhood, you don't want to miss this rare opportunity to own a LEED certified home in one of northwest Portland's most cherished neighborhoods.
MLS#
267882611
Neighborhood
Bonny Slope
Bedrooms
5
Bathrooms
4
Square Feet
3300+ SQFT
Lot Size
5000+ SQFT
Year Built
2008
Property Taxes
$ 10,000.37 (2024)

Property Photos


Virtual Tour